Free Printable Construction Change Order Form

Free Printable Fillable Construction Change Order Form Printable

Free Printable Construction Change Order Form

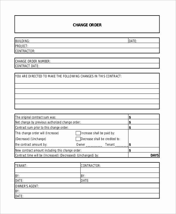
Are you in the construction business and need a simple way to manage change orders? Look no further! We’ve got you covered with a free printable construction change order form that will make your life easier.

Managing change orders can be a hassle, but with our free printable form, you can easily document any changes to the original construction plans. This form will help you keep track of all modifications and ensure that everyone is on the same page.

Related Post  Printable Blank 12 Month 2025 Calendar

Free Printable Construction Change Order Form

Don’t let change orders derail your construction projects. Use our free printable form to streamline the process and keep everything organized. Download it today and take control of your construction change orders!

With our free printable construction change order form, you can easily manage modifications to your construction projects without any hassle. Download it now and simplify the change order process for your next project!

Related Post  Free Printable Kindergarten Sets Of Reading Comprehension Passages

Download and Print Free Printable Construction Change Order Form Listed below

Construction Change Order Process Tips Smartsheet

Printable Change Order Forms

Free Printable Construction Change Order Form

Change Order Template For Construction

Printable Construction Change Order Form

Leave a Reply

Your email address will not be published. Required fields are marked *

Back To Top